Luxury houses - 73465HS
Floor Plan

Main Level

2nd Floor

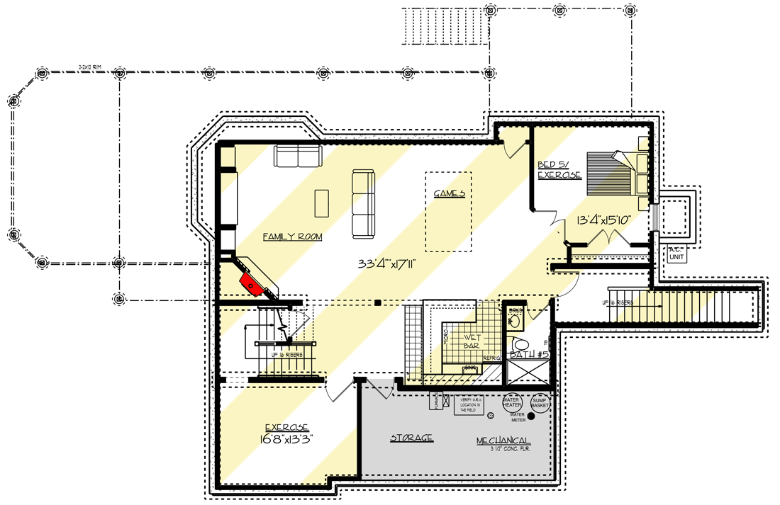
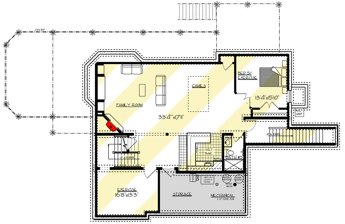
Optional Lower Level


Plan details

Square Footage Breakdown

  • Total Heated Area:3,917 sq. ft.

  • 1st Floor:1,800 sq. ft.

  • 2nd Floor:2,117 sq. ft.

  • Optional Lower Level:1,564 sq. ft.

  • Basement Unfinished:236 sq. ft.

Beds/Baths

  • Bedrooms:4 or 5

  • Full Bathrooms:3 or 4

  • Half Bathrooms:1

Foundation Type

  • Standard Foundations:Basement

Exterior Walls

  • Standard Type(s):2x6


Dimensions

  • Width:84' 6"

  • Depth:65' 6"

Garage

  • Type:Attached

  • Area:720 sq. ft.

  • Count:3 cars

  • Entry Location:Side

Ceiling Heights

  • Floor / Height:Lower Level / 9' 0"First Floor / 9' 0"Second Floor / 8' 0"


FULL SPECS & FEATURES

If you need more information, pleasefeel free to contact us.
Contact: Mr. Vino Zhang
Cell: +86-135 6063 2003 (Whatsapp and Wechat No.)
Email: vino@jncnhomes.com