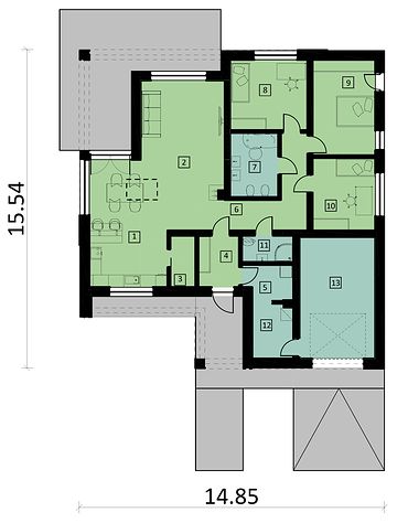
Ground floor

1. Kuchnia10,54 m2
2. Pokój dzienny + jadalnia38,48 m2
3. Spiżarnia3,12 m2
4. Wiatrołap5,04 m2
5. Pom. gospodarcze4,05 m2
6. Korytarz10,27 m2
7. Łazienka7,41 m2
8. Pokój13 m2
9. Pokój14,26 m2
10. Pokój10,83 m2
11. Wc3,26 m2
12. Pom. gospodarcze5,35 m2
13. Garaż jednostanowiskowy26,54 m2
Razem152,15 m2
If you need more information, pleasefeel free to contact us.
Contact: Mr. Vino Zhang
Cell: +86-135 6063 2003 (Whatsapp and Wechat No.)
Email: vino@jncnhomes.com