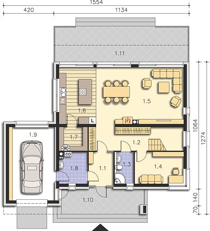
Ground floor

1. Wiatrołap5,44 m2
2. Korytarz13,66 m2(15,76 m2)
3. Łazienka4,20 m2
4. Pokój10,91 m2
5. Pokój dzienny35,06 m2
6. Kuchnia14,69 m2
7. Spiżarnia4,71 m2
8. Kotłownia6,11 m2
9. Garaż jednostanowiskowy23,64 m2
10. Podest(15,33 m2)
11. Taras(34,02 m2)
Razem118,42 m2(120,52 m2)
1st floor

1. Schody5,31 m2
2. Korytarz15,32 m2
3. Pokój14,12 m2
4. Pokój14,12 m2
5. Pokój20,11 m2
6. Pokój12,18 m2
7. Łazienka8,72 m2
8. Pom. gospodarcze6,11 m2
Razem95,99 m2
If you need more information, pleasefeel free to contact us.
Contact: Mr. Vino Zhang
Cell: +86-135 6063 2003 (Whatsapp and Wechat No.)
Email: vino@jncnhomes.com