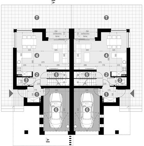
Ground floor

1. Wiatrołap3,35 m2
2. Korytarz6,23 m2
3. Wc1,62 m2
4. Pokój dzienny + kuchnia + jadalnia29,97 m2
5. Spiżarnia1,42 m2(2,38 m2)
6. Garaż jednostanowiskowy17,99 m2
7. Taras(39,45 m2)
Razem60,58 m2(61,54 m2)
1st floor

1. Korytarz9,51 m2
2. Pomieszczenie gospodarcze + kotłownia3,20 m2
3. Pokój11,83 m2
4. Pokój12,35 m2
5. Garderoba2,95 m2
6. Pokój13,77 m2
7. Łazienka8,37 m2
8. Taras(17,37 m2)
9. Taras(9,16 m2)
10. Taras(2,84 m2)
Razem61,98 m2
If you need more information, pleasefeel free to contact us.
Contact: Mr. Vino Zhang
Cell: +86-135 6063 2003 (Whatsapp and Wechat No.)
Email: vino@jncnhomes.com