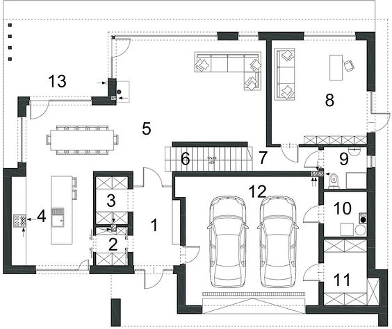
Ground floor

1. Wiatrołap8,07 m2
2. Spiżarnia2,81 m2
3. Garderoba3,51 m2
4. Kuchnia17,42 m2
5. Pokój dzienny + jadalnia52,94 m2
6. Schody4,52 m2
7. Korytarz3,88 m2
8. Pokój22,70 m2
9. Łazienka4,14 m2
10. Pom. gospodarcze4,26 m2
11. Pom. gospodarcze7,30 m2
12. Garaż dwustanowiskowy39,68 m2
13. Taras(43 m2)
Razem171,23 m2
1st floor

1. Korytarz16,21 m2
2. Pokój15,50 m2
3. Pokój15,59 m2
4. Pokój15,51 m2
5. Garderoba5,71 m2
6. Łazienka9,90 m2
7. Pom. gospodarcze9,97 m2
8. Pokój12,38 m2
9. Łazienka6,22 m2
10. Garderoba8,09 m2
11. Pokój15,42 m2
12. Taras(16,57 m2)
13. Balkon(12,93 m2)
Razem130,50 m2
If you need more information, pleasefeel free to contact us.
Contact: Mr. Vino Zhang
Cell: +86-135 6063 2003 (Whatsapp and Wechat No.)
Email: vino@jncnhomes.com