Ground floor

1. Wiatrołap4,53 m2
2. Garderoba2,65 m2
3. Hall11,65 m2
4. Wc2,17 m2
5. Spiżarnia6,13 m2
6. Kuchnia16,34 m2
7. Jadalnia17,94 m2
8. Pokój dzienny45,16 m2
9. Pokój16,38 m2
10. Garaż dwustanowiskowy36 m2
11. Kotłownia8,76 m2
Razem167,71 m2
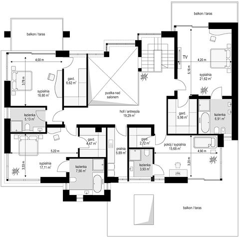
1st floor

1. Hall19,29 m2
2. Pokój16,80 m2
3. Garderoba6,62 m2
4. Łazienka5,13 m2
5. Pokój17,11 m2
6. Garderoba4,47 m2
7. Łazienka7,56 m2
8. Pom. gospodarcze5,89 m2
9. Pokój15,68 m2
10. Garderoba2,72 m2
11. Łazienka3,93 m2
12. Pokój21,62 m2
13. Garderoba5,98 m2
14. Łazienka6,91 m2
Razem139,71 m2
If you need more information, pleasefeel free to contact us.
Contact: Mr. Vino Zhang
Cell: +86-135 6063 2003 (Whatsapp and Wechat No.)
Email: vino@jncnhomes.com