Ground floor

1. Wiatrołap4,45 m2
2. Hall2,86 m2
3. Wc1,66 m2
4. Spiżarnia1,88 m2
5. Kuchnia10,21 m2
6. Pokój dzienny + jadalnia32,19 m2
7. Korytarz12,86 m2
8. Pokój11,75 m2
9. Pokój14,32 m2
10. Garderoba3,03 m2
11. Łazienka6,32 m2
12. Kotłownia9,06 m2
13. Garderoba3,03 m2
14. Pokój11,66 m2
Razem125,28 m2
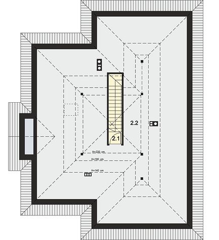
Attic

1. Schody0,90 m2
2. Poddasze do adaptacji34,97 m2(144,13 m2)
Razem35,87 m2(145,03 m2)
    If you need more information, pleasefeel free to contact us.
Contact: Mr. Vino Zhang
Cell: +86-135 6063 2003 (Whatsapp and Wechat No.)
Email: vino@jncnhomes.com