Ground floor

1. Wiatrołap7,35 m2
2. Hall21,73 m2
3. Spiżarnia2,04 m2
4. Kuchnia13,73 m2
5. Pokój dzienny + jadalnia59,68 m2
6. Pokój14,06 m2
7. Pom. gospodarcze12,31 m2
8. Sauna6,71 m2
9. Wc1,37 m2
10. Garaż dwustanowiskowy44,54 m2
Razem183,52 m2
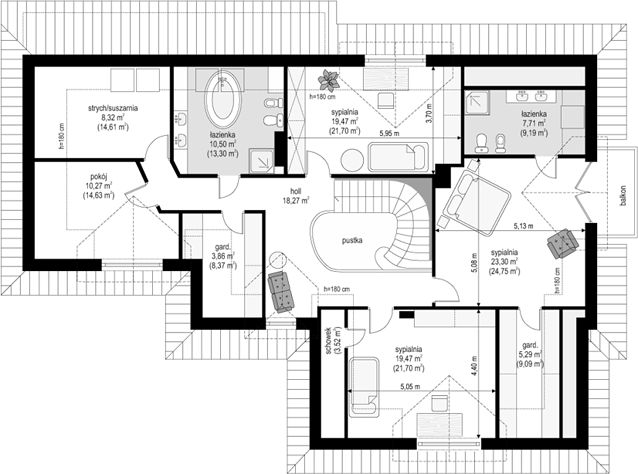
Attic

1. Strych8,32 m2(14,61 m2)
2. Pokój10,27 m2(14,63 m2)
3. Łazienka10,50 m2(13,30 m2)
4. Pokój19,47 m2(21,70 m2)
5. Łazienka7,71 m2(9,19 m2)
6. Garderoba3,86 m2(8,37 m2)
7. Hall18,27 m2
8. Pokój23,30 m2(24,75 m2)
9. Pokój19,74 m2(21,70 m2)
10. Garderoba5,29 m2(9,09 m2)
11. Garderoba3,52 m2
Razem130,25 m2(159,13 m2)
    If you need more information, pleasefeel free to contact us.
Contact: Mr. Vino Zhang
Cell: +86-135 6063 2003 (Whatsapp and Wechat No.)
Email: vino@jncnhomes.com