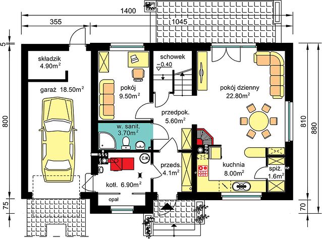
Ground floor

1. Wiatrołap4,10 m2
2. Korytarz5,60 m2
3. Pokój dzienny22,80 m2
4. Kuchnia8 m2
5. Spiżarnia1,60 m2
6. Pom. gospodarcze
7. Pokój9,50 m2
8. Łazienka3,70 m2
9. Kotłownia6,90 m2
10. Pom. gospodarcze4,90 m2
11. Garaż jednostanowiskowy18,50 m2
Razem85,60 m2
Attic

1. Korytarz7,30 m2
2. Pokój11,70 m2
3. Pokój11,50 m2
4. Garderoba5,30 m2
5. Łazienka8 m2
6. Strych11,60 m2
Razem55,40 m2
    If you need more information, pleasefeel free to contact us.
Contact: Mr. Vino Zhang
Cell: +86-135 6063 2003 (Whatsapp and Wechat No.)
Email: vino@jncnhomes.com