Ground floor

1. Wiatrołap3,30 m2
2. Kuchnia9,50 m2
3. Spiżarnia1,90 m2
4. Pokój dzienny + jadalnia25,20 m2
5. Korytarz6,30 m2
6. Pokój9,50 m2
7. Łazienka3,70 m2
8. Kotłownia5,20 m2
9. Garaż jednostanowiskowy18,40 m2
10. Pom. gospodarcze4,70 m2
Razem87,70 m2
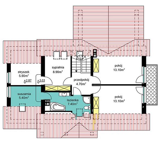
Attic

1. Korytarz4,70 m2
2. Pokój13,10 m2
3. Pokój13,10 m2
4. Łazienka7,40 m2
5. Pokój8,90 m2
6. Strych5,90 m2
7. Pom. gospodarcze5,40 m2
Razem58,50 m2
    If you need more information, pleasefeel free to contact us.
Contact: Mr. Vino Zhang
Cell: +86-135 6063 2003 (Whatsapp and Wechat No.)
Email: vino@jncnhomes.com