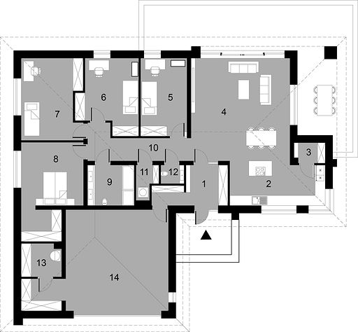
Ground floor

1. Wiatrołap8,30 m2
2. Kuchnia14,50 m2
3. Spiżarnia2,20 m2
4. Pokój dzienny + jadalnia35,80 m2
5. Pokój12,80 m2
6. Pokój14,20 m2
7. Pokój17 m2
8. Pokój + garderoba19,10 m2
9. Łazienka6,60 m2
10. Korytarz9,50 m2
11. Pom. gospodarcze2,30 m2
12. Wc1,50 m2
13. Kotłownia4,60 m2
14. Garaż dwustanowiskowy41,50 m2
Razem189,90 m2
    If you need more information, pleasefeel free to contact us.
Contact: Mr. Vino Zhang
Cell: +86-135 6063 2003 (Whatsapp and Wechat No.)
Email: vino@jncnhomes.com