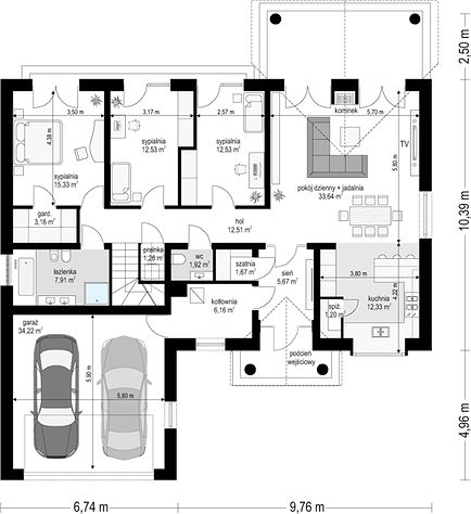
Ground floor

1. Wiatrołap5,67 m2
2. Kotłownia6,16 m2
3. Garaż dwustanowiskowy34,22 m2
4. Garderoba1,67 m2
5. Hall12,51 m2
6. Pokój dzienny + jadalnia33,64 m2
7. Kuchnia12,33 m2
8. Spiżarnia1,20 m2
9. Pokój12,53 m2
10. Wc1,92 m2
11. Pom. gospodarcze1,26 m2
12. Pokój12,53 m2
13. Łazienka7,91 m2
14. Pokój15,33 m2
15. Garderoba3,16 m2
Razem162,04 m2
    If you need more information, pleasefeel free to contact us.
Contact: Mr. Vino Zhang
Cell: +86-135 6063 2003 (Whatsapp and Wechat No.)
Email: vino@jncnhomes.com