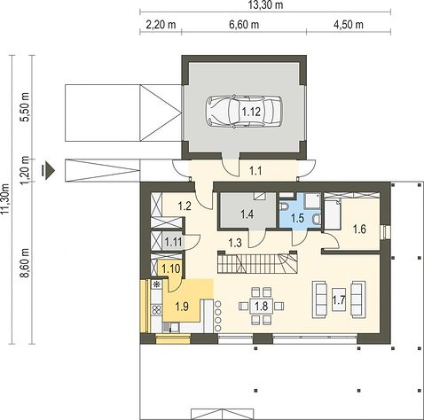
Ground floor

1. Wiatrołap6,56 m2
2. Korytarz6,85 m2
3. Korytarz8,95 m2
4. Pom. gospodarcze5,66 m2
5. Łazienka3,87 m2
6. Pokój9,18 m2
7. Pokój dzienny18,41 m2
8. Jadalnia17,68 m2
9. Kuchnia12,46 m2
10. Spiżarnia2,06 m2
11. Pom. gospodarcze1,97 m2
12. Garaż jednostanowiskowy28,22 m2
Razem121,87 m2
Attic

1. Korytarz7,70 m2
2. Pokój12,61 m2
3. Garderoba8,56 m2
4. Łazienka12,68 m2
5. Pokój14,79 m2
6. Pokój15,76 m2
Razem72,10 m2
    If you need more information, pleasefeel free to contact us.
Contact: Mr. Vino Zhang
Cell: +86-135 6063 2003 (Whatsapp and Wechat No.)
Email: vino@jncnhomes.com