Ground floor

1. Wiatrołap4,65 m2
2. Korytarz17,57 m2
3. Kuchnia6,08 m2
4. Pokój dzienny + jadalnia27,96 m2
5. Schody2,33 m2
6. Łazienka3,55 m2
7. Pokój16,84 m2
8. Pokój12,60 m2
9. Pom. gospodarcze4,62 m2
10. Garaż jednostanowiskowy31,26 m2
Razem127,46 m2
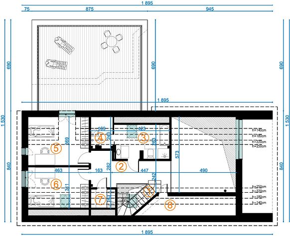
Attic

1. Schody1,97 m2
2. Korytarz12,51 m2
3. Łazienka7,32 m2(10,42 m2)
4. Pom. gospodarcze1,50 m2(3,66 m2)
5. Pokój10,81 m2(14,24 m2)
6. Pokój10,81 m2(14,24 m2)
7. Garderoba1,25 m2(2,62 m2)
8. Pom. gospodarcze1,76 m2(11,65 m2)
Razem47,93 m2(71,31 m2)
    If you need more information, pleasefeel free to contact us.
Contact: Mr. Vino Zhang
Cell: +86-135 6063 2003 (Whatsapp and Wechat No.)
Email: vino@jncnhomes.com