Ground floor

1. Wiatrołap6,58 m2
2. Pokój11,24 m2
3. Pokój dzienny + kuchnia + jadalnia66,13 m2
4. Pokój15,62 m2
5. Łazienka4,28 m2
6. Korytarz5,19 m2
7. Pom. gospodarcze6,08 m2
8. Garaż dwustanowiskowy54,64 m2
9. Spiżarnia4,02 m2
Razem173,78 m2
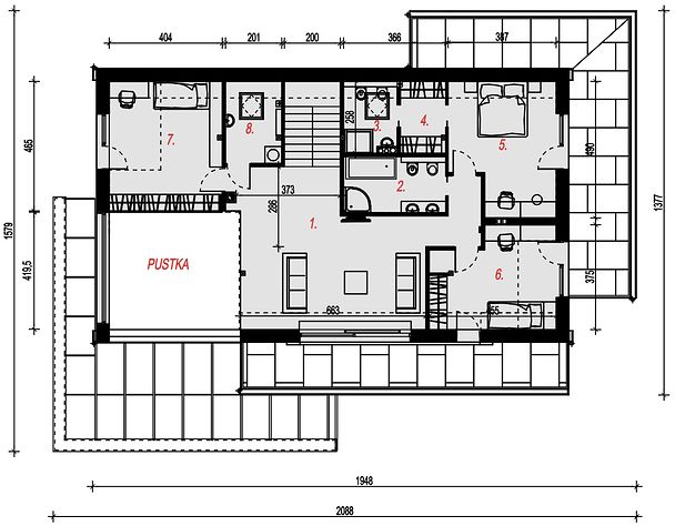
Attic

1. Hall32,20 m2
2. Łazienka7,06 m2
3. Łazienka3,45 m2
4. Garderoba2,98 m2
5. Pokój15,55 m2
6. Pokój12,50 m2
7. Pokój15,96 m2
8. Pom. gospodarcze4,49 m2
Razem94,19 m2
    If you need more information, pleasefeel free to contact us.
Contact: Mr. Vino Zhang
Cell: +86-135 6063 2003 (Whatsapp and Wechat No.)
Email: vino@jncnhomes.com