The Malibu house plan is an interesting proposition for people with a medium-wide plot. The house is characterized by an L-shaped body, which is very functional due to the clear division of the house into zones. An interesting element is the decorative bay window taken into account by the architect. In this design, the ridge runs parallel to the road, which is often referred to in zoning. The house has been designed to be freestanding. The design includes a double garage in the body of the building. It is also an excellent proposition for people looking for a house with an envelope roof, which is one of the most robust roof structures. The Malibu project is a two-story house, so we can afford a house with a larger area on a relatively small plot. The living area included in the project will surely satisfy people who like to enjoy time together with their family. It is made up of a functional kitchen that will delight every investor. Supporters of practical solutions will undoubtedly be pleased that there is also a place for a pantry. The day zone is also created by a spacious living room and dining room. Additionally, the living room has a fireplace, which gives the interior a unique atmosphere. The project includes one comfortable bathroom on the ground floor and two additional bathrooms on the first floor. The house has six comfortable bedrooms, which makes it an excellent choice for a family of 5-8 people. The space can also be used as a guest room or office. In addition to this, the house also has a utility room that you can use according to your needs. The terrace offers the possibility of contact with nature and is conducive to relaxation. In addition, the porch planned in the project will make it impossible for anyone to pass by this house. A winter garden planned in the house provides a comfortable rest in contact with nature. The house was designed in brick technology. the villa.
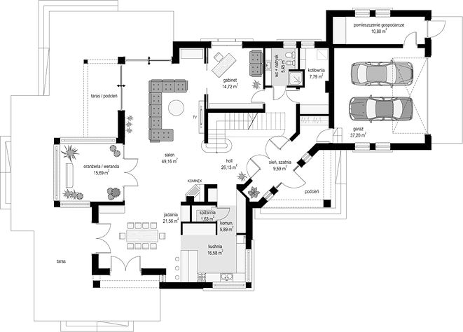
Ground floor

1. Wiatrołap9,59 m2
2. Hall26,13 m2
3. Spiżarnia1,63 m2
4. Korytarz5,89 m2
5. Kuchnia16,58 m2
6. Jadalnia21,58 m2
7. Ogród zimowy15,69 m2
8. Pokój dzienny49,16 m2
9. Pokój14,72 m2
10. Łazienka5,45 m2
11. Kotłownia7,79 m2
12. Pom. gospodarcze10,80 m2
13. Garaż dwustanowiskowy37,20 m2
Razem222,21 m2
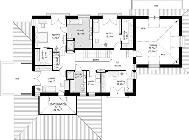
Second floor

1. Pokój17,73 m2
2. Garderoba5,23 m2
3. Pokój14,44 m2
4. Strych3,34 m2(12,23 m2)
5. Łazienka6,55 m2
6. Pom. gospodarcze5,25 m2
7. Pokój12,35 m2
8. Łazienka13,38 m2
9. Pokój15,16 m2
10. Garderoba5,93 m2
11. Hall19,02 m2
12. Pokój18,21 m2(36,08 m2)
Razem136,59 m2(163,35 m2)
    If you need more information, pleasefeel free to contact us.
Contact: Mr. Vino Zhang
Cell: +86-135 6063 2003 (Whatsapp and Wechat No.)
Email: vino@jncnhomes.com