Modern houses
LK&1095
PLAN DESCRIPTION
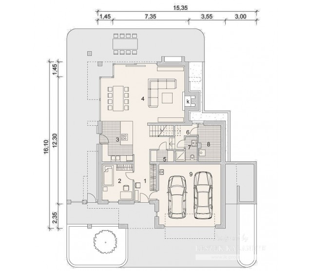
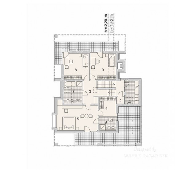
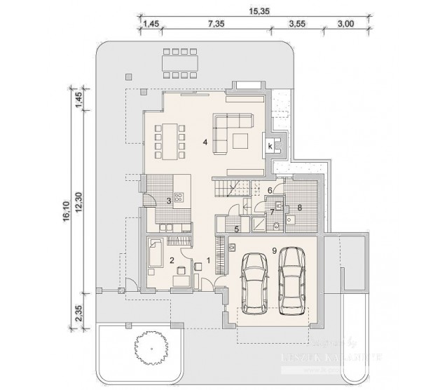
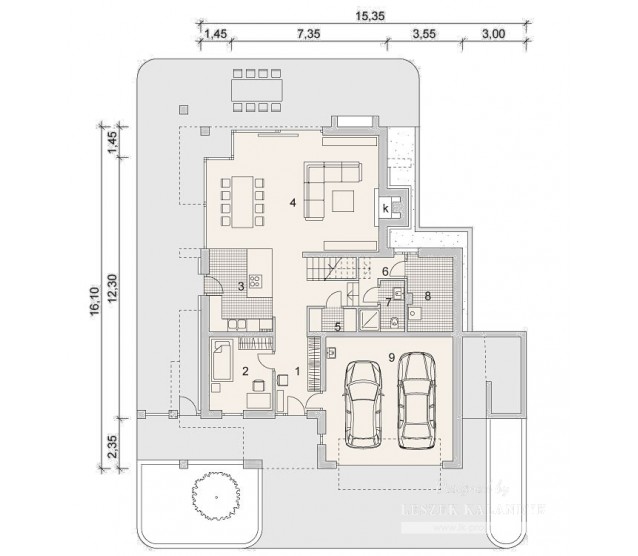
FLOOR PLANS

Ground floor

Floor


FULL SPECS & FEATURES
1. Usable area180,72 m²
2. Area garage35,1 m²
3. Additional area7,56 m²
4. Total surface269,93 m²
5. Building area178,43 m²
6. Net volume673,5 m³
7. Gross volume1083 m³
8. Building height8,6 m
9. Roof angle43 °
10. Roof area85,94 m²
11. Сeiling height2,78/2,80 m
12. Minimum plot size23,35 x 26,05 m


If you need more information, pleasefeel free to contact us.
Contact: Mr. Vino Zhang
Cell: +86-135 6063 2003 (Whatsapp and Wechat No.)
Email: vino@jncnhomes.com