Modern houses
LK&1571
PLAN DESCRIPTION
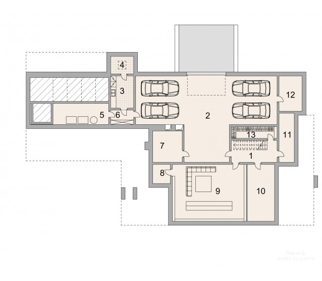
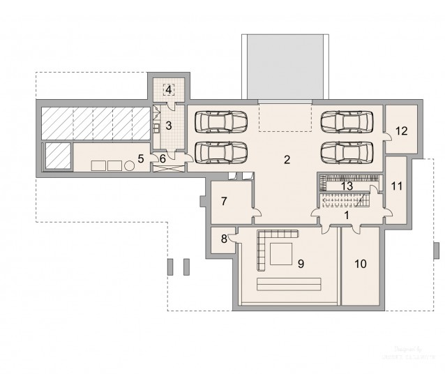
FLOOR PLANS

Basement

Ground floor

Floor

Attic


FULL SPECS & FEATURES
1. Usable area654,35 m²
2. Basement area139,20 m²
3. Area garage1903,52 m²
4. Total surface460,42 m²
5. Building area460,42 m²
6. Net volume
7. Gross volume12,00 m³
8. Building height25 m
9. Roof angle82,95 °
10. Roof area3,00 m²
11. Сeiling height27,50 x 47,76 m
12. Minimum plot size27,50 x 47,76 m


If you need more information, pleasefeel free to contact us.
Contact: Mr. Vino Zhang
Cell: +86-135 6063 2003 (Whatsapp and Wechat No.)
Email: vino@jncnhomes.com