Modern houses
LK&1611
PLAN DESCRIPTION
FLOOR PLANS

Basement

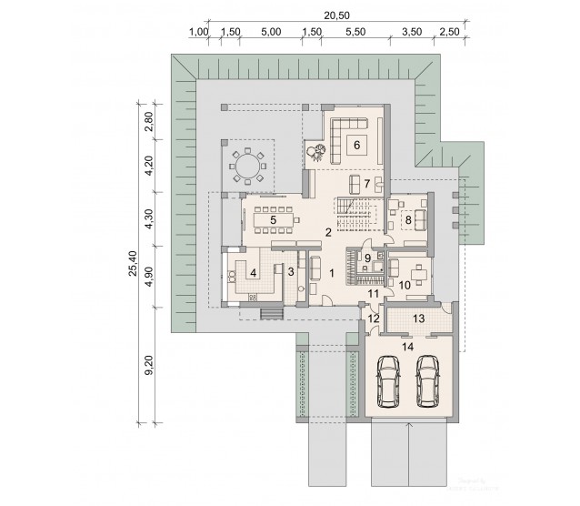
Ground floor

Floor


FULL SPECS & FEATURES
1. Usable area349,08 m²
2. Basement area45,56 m²
3. Area garage45,15 m²
4. Total surface462,15 m²
5. Building area273,10 m²
6. Net volume
7. Gross volume
8. Building heightm
9. Roof angle°
10. Roof area
11. Сeiling heightm
12. Minimum plot size27,50 x 32,90 m


If you need more information, pleasefeel free to contact us.
Contact: Mr. Vino Zhang
Cell: +86-135 6063 2003 (Whatsapp and Wechat No.)
Email: vino@jncnhomes.com