Modern houses
LK&1602
PLAN DESCRIPTION
FLOOR PLANS

Basement

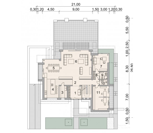
Ground floor

Floor


FULL SPECS & FEATURES
1. Usable area634,19 m²
2. Area garage45,20 m²
3. Total surface794,26 m²
4. Building area324,05 m²
5. Net volume
6. Gross volume
7. Building height9,00 / 12,50 m
8. Roof angle30 °
9. Roof area
10. Сeiling height2,70 m
11. Minimum plot size38,10 x 33,50 m


If you need more information, pleasefeel free to contact us.
Contact: Mr. Vino Zhang
Cell: +86-135 6063 2003 (Whatsapp and Wechat No.)
Email: vino@jncnhomes.com