Modern houses
LK&1621
PLAN DESCRIPTION
FLOOR PLANS

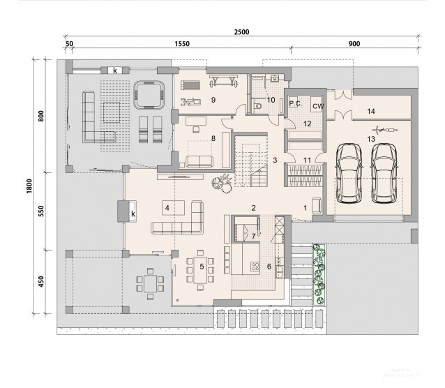
Parter

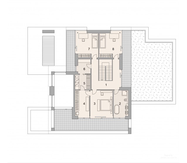
Piętro


FULL SPECS & FEATURES
1. Powierzchnia użytkowa232,06 m²
2. Powierzchnia dodatkowa58,05 m²
3. Powierzchnia całkowita594,90 m²
4. Powierzchnia zabudowy315,96 m²
5. Kubatura netto833,89 m³
6. Kubatura brutto
7. Wysokość budynku9,11 m
8. Kąt nachylenia dachu30 °
9. Powierzchnia dachu133,42 m²
10. Wysokość pomieszczeń2,70 m
11. Minimalne wymiary działki32,00 x 25,00 m


If you need more information, pleasefeel free to contact us.
Contact: Mr. Vino Zhang
Cell: +86-135 6063 2003 (Whatsapp and Wechat No.)
Email: vino@jncnhomes.com