Traditional houses
LK&904
PLAN DESCRIPTION
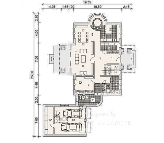
FLOOR PLANS

Ground floor

Attic


FULL SPECS & FEATURES
1. Usable area254,05 m²
2. Area garage34,22 m²
3. Additional area56,79 m²
4. Total surface529,64 m²
5. Building area277,94 m²
6. Net volume769 m³
7. Gross volume1320 m³
8. Energy for heating17,21 kWh/m²*year
9. Building height10,36 m
10. Attic wall height0,71 m
11. Roof angle35/45/55/67 °
12. Roof area484 m²
13. Сeiling height3,10/3,00 m
14. Minimum plot size33,9 x 26,7 m


If you need more information, pleasefeel free to contact us.
Contact: Mr. Vino Zhang
Cell: +86-135 6063 2003 (Whatsapp and Wechat No.)
Email: vino@jncnhomes.com