Traditional houses
LK&1032
PLAN DESCRIPTION
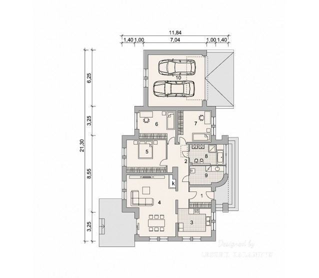
FLOOR PLANS

Ground floor

Attic


FULL SPECS & FEATURES
1. Usable area120,71 m²
2. Area garage36,3 m²
3. Attic area62,36 m²
4. Total surface207 m²
5. Building area207 m²
6. Net volume427,58 m³
7. Gross volume1120 m³
8. Energy for heating6,54 kWh/m²*year
9. Building height7,37 m
10. Roof angle35 °
11. Roof area325 m²
12. Сeiling height2,73 / 2,75 m
13. Minimum plot size28,3 x 19,9 m


If you need more information, pleasefeel free to contact us.
Contact: Mr. Vino Zhang
Cell: +86-135 6063 2003 (Whatsapp and Wechat No.)
Email: vino@jncnhomes.com