Traditional houses
LK&1364
PLAN DESCRIPTION
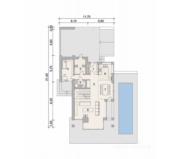
FLOOR PLANS

Ground floor

Attic


FULL SPECS & FEATURES
1. Usable area152,93 m²
2. Total surface227,21 m²
3. Building area139,82 m²
4. Net volume557,48 m³
5. Gross volume691,38 m³
6. Building height9 m
7. Attic wall height1,2 m
8. Roof angle43 °
9. Minimum plot size28,9 x 21,2 m


If you need more information, pleasefeel free to contact us.
Contact: Mr. Vino Zhang
Cell: +86-135 6063 2003 (Whatsapp and Wechat No.)
Email: vino@jncnhomes.com