Traditional houses
LK&1548
PLAN DESCRIPTION
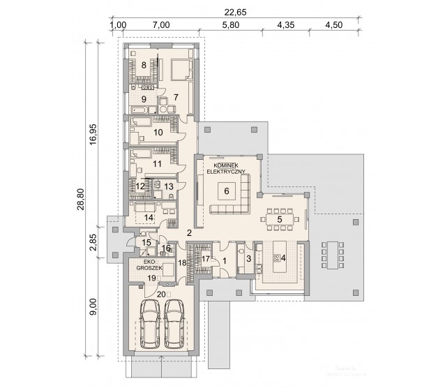
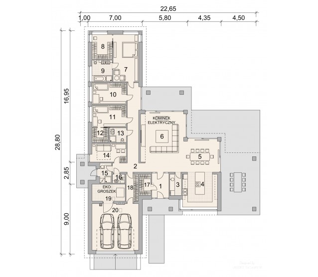
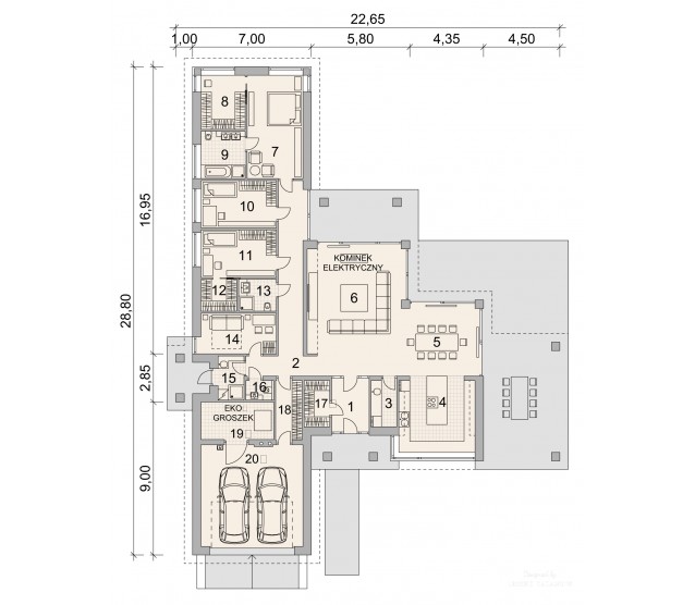
FLOOR PLANS

Ground floor


FULL SPECS & FEATURES
1. Usable area197,64 m²
2. Additional area50,92 m²
3. Total surface366,89 m²
4. Building area311,42 m²
5. Net volume844,00 m³
6. Gross volume1201,00 m³
7. Building height6,03 m
8. Roof angle35 °
9. Roof area339,66 m²
10. Сeiling height2,92 m
11. Minimum plot size28,65 x 36,80 m


If you need more information, pleasefeel free to contact us.
Contact: Mr. Vino Zhang
Cell: +86-135 6063 2003 (Whatsapp and Wechat No.)
Email: vino@jncnhomes.com