LK&1574 - Traditional houses - JNCN HOMES - Prefabricated Modular Construction, JNCN HOMES modular homes and office accommodation, Premium quality factory built homes, pods and modular residential buildings. Designer studio homes, Contemporary mobile homes, Luxury modular homes, Superior prefab buildings, Off site construction solutions and prefabricated homes.
Traditional houses
LK&1574
PLAN DESCRIPTION
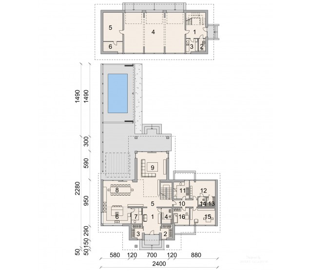
FLOOR PLANS

Basement

Ground floor

Floor

 


FULL SPECS & FEATURES

If you need more information, pleasefeel free to contact us.
Contact: Mr. Vino Zhang
Cell: +86-135 6063 2003 (Whatsapp and Wechat No.)
Email: vino@jncnhomes.com