Traditional houses
LK&1587
PLAN DESCRIPTION
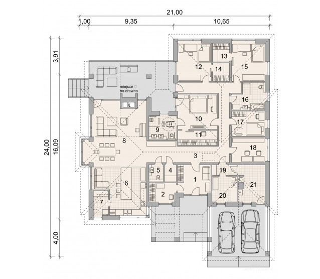
FLOOR PLANS

Ground floor


FULL SPECS & FEATURES
1. Usable area255,54 m²
2. Total surface
3. Building area355,95 m²
4. Net volume
5. Gross volume
6. Building height9,10 m
7. Roof angle35 °
8. Roof area
9. Сeiling heightm
10. Minimum plot size29,00 x 31,00 m


If you need more information, pleasefeel free to contact us.
Contact: Mr. Vino Zhang
Cell: +86-135 6063 2003 (Whatsapp and Wechat No.)
Email: vino@jncnhomes.com