Barnhouses
LK&1452
PLAN DESCRIPTION
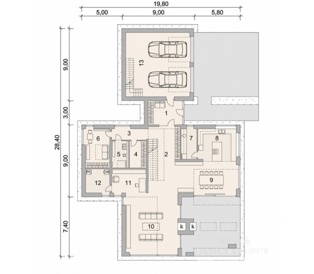
FLOOR PLANS

Ground floor

Attic



FULL SPECS & FEATURES
1. Usable area365,48 m²
2. Area garage58,14 m²
3. Total surface586,98 m²
4. Building area341,3 m²
5. Net volume1516,53 m³
6. Gross volume1878,39 m³
7. Building height9 m
8. Attic wall height1,2 m
9. Roof angle43 °
10. Сeiling height2,70 m; 3,00 m
11. Minimum plot size35,4 x 27,8 m


If you need more information, pleasefeel free to contact us.
Contact: Mr. Vino Zhang
Cell: +86-135 6063 2003 (Whatsapp and Wechat No.)
Email: vino@jncnhomes.com