Barnhouses
LK&1488
PLAN DESCRIPTION
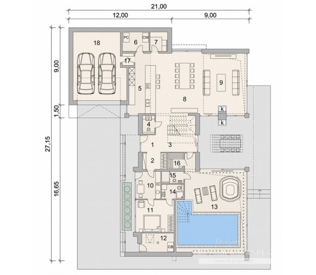
FLOOR PLANS

Ground floor

Attic


FULL SPECS & FEATURES
1. Usable area371,64 m²
2. Area garage46,89 m²
3. Additional area1,87 m²
4. Total surface685,4 m²
5. Building area379,1 m²
6. Building height9,7 m
7. Attic wall height1,8 m
8. Roof angle42 °
9. Сeiling height2,65 m; 1,80 m; 3,75 m
10. Minimum plot size34,15 x 29 m


If you need more information, pleasefeel free to contact us.
Contact: Mr. Vino Zhang
Cell: +86-135 6063 2003 (Whatsapp and Wechat No.)
Email: vino@jncnhomes.com