Barnhouses
LK&1531
PLAN DESCRIPTION
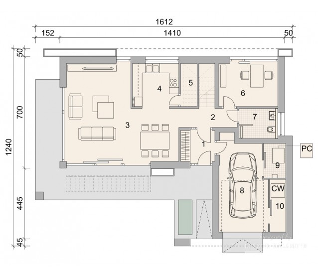
FLOOR PLANS

Ground floor

Attic


FULL SPECS & FEATURES
1. Usable area139,39 m²
2. Additional area23,45 m²
3. Total surface258,01 m²
4. Building area122,84 m²
5. Net volume512,88 m³
6. Gross volume885,65 m³
7. Building height8,60 m
8. Roof angle42 °
9. Сeiling height2,70 m 2,85 m
10. Minimum plot size19,45 x 22,62 m


If you need more information, pleasefeel free to contact us.
Contact: Mr. Vino Zhang
Cell: +86-135 6063 2003 (Whatsapp and Wechat No.)
Email: vino@jncnhomes.com